POMONA APARTMENT

Program:

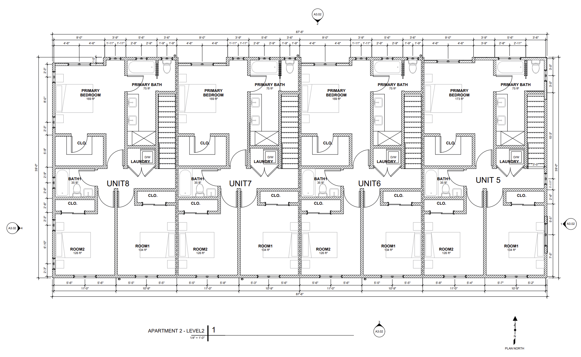
21,561 SQ. FT. LOT SIZE / 12,660 SQ. FT. BUILDING SIZE

2 STORIES / 8 UNITS / 3B2.5B

TYPE VB

Status

In Progress

Location

Pomona

Nestled within a charming residential enclave in pomona, this development comprising two sets of four-unit apartments. Each unit offers 1600 square feet, with three bedrooms and two and a half bathrooms, it provides an ideal living space for families in search of comfort and inviting ambience.

Home Work About Contact