LOS ANGELES DUPLEX

Program:

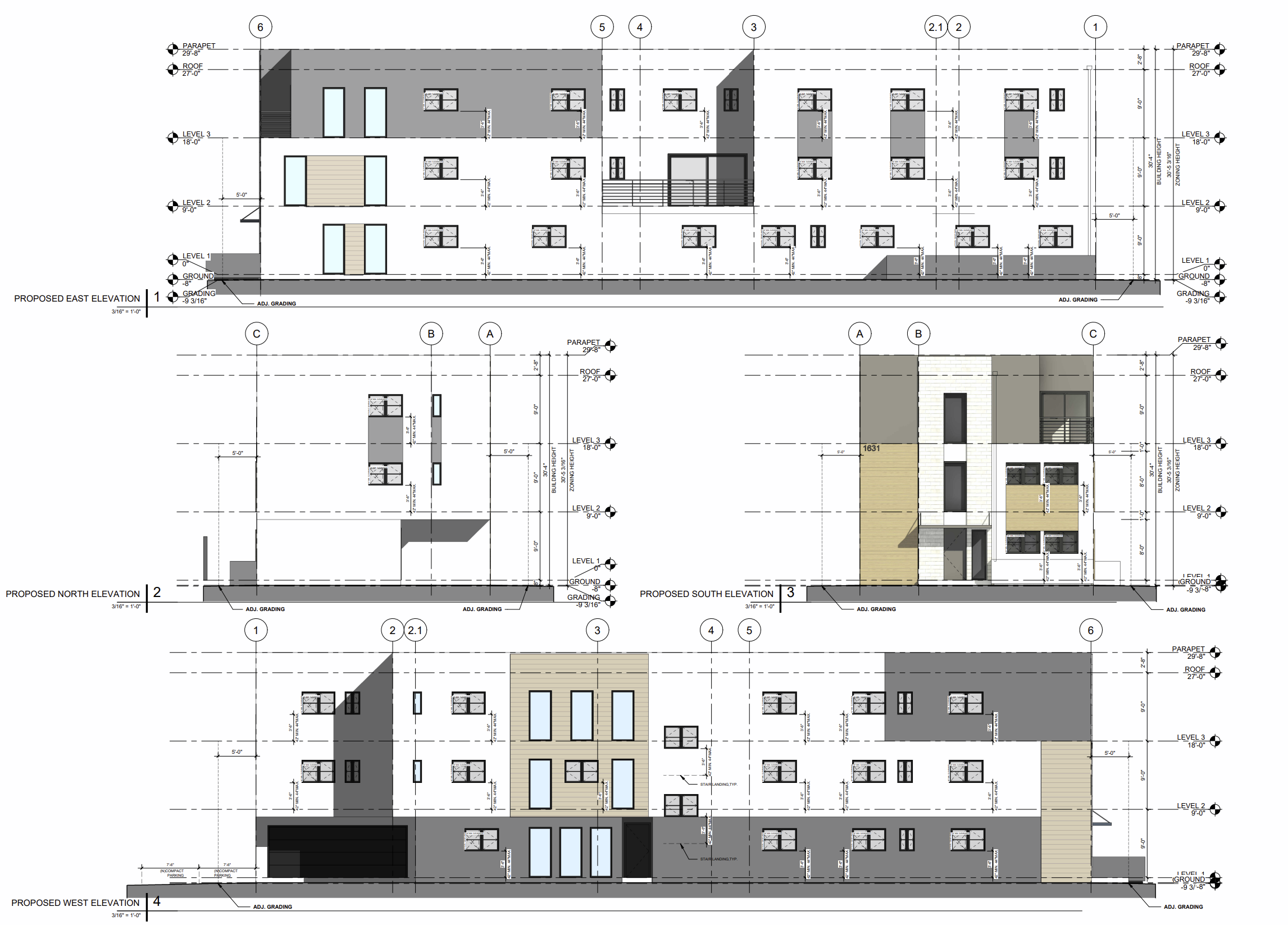
7,279 SQ. FT. LOT SIZE / 9,421 SQ. FT. BUILDING SIZE

3 STORIES / 2 UNITS / 30 ROOMS

TYPE VB

Status

Under Construction

This new student housing project, conveniently located near usc campus, blends traditional and contemporary architectural styles for a dynamic look. It's poised to meet the pressing demand for student accommodation while fostering a vibrant campus community within walking distance.

Home Work About Contact